

由今泰設計師胡冰玉、喻劼領銜,
團隊在溝通過程中提煉出
客戶想追求的
“時尚、簡約”的訴求,
/
經過多次耐心的交流下,
最終定下現代簡約的設計風格。
今泰君“截獲”設計方案稿
帶大家一覽該項目的設計思路吧~


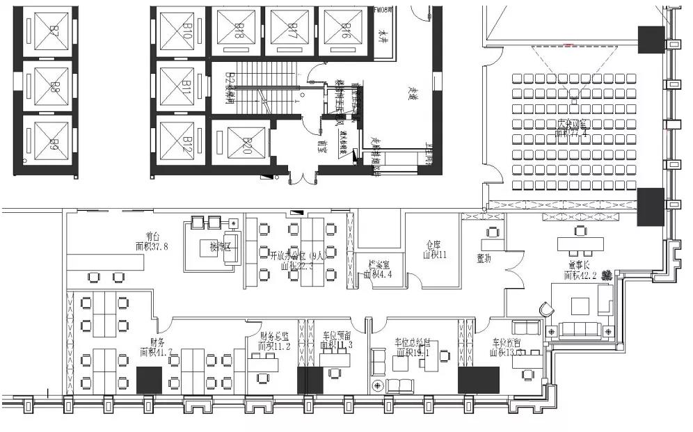
平面圖
///





整體以木色、黑色配合空間大面積白色,再以翠綠點綴,使員工辦公的心情能夠沉靜下來,工作效率自然可以得到提高。

沉穩的木色加上溫和明亮的自然光顯得整個空間能夠更加的流暢明亮,光線柔和有度,在這樣的環境中辦公讓人更加寧靜,整體也會感覺比較舒適。


///
本案辦公室設計追求高端、簡約、大氣之感,讓整個空間顯得張弛有度,層次分明,去掉多余而浮躁的元素,用最直接的設計,體現出企業人性化的、舒適的工作氛圍。

辦公空間 | 教育培訓 | 商鋪空間 | 餐飲空間
4007-368-006
更多精美案例
請戳一戳



